• Call Us Now : +91 9538525250

    |
  • info@Keyator7.com

    |

Projects

Ozone Urbana

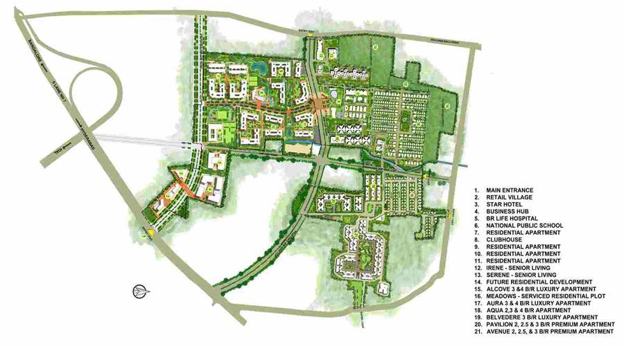
At Ozone Urbana we promise you a lifestyle that's unmatched by any other development in its league. Spread over 158 acres, this picturesque township is located right next to the BIAL flyover on NH – 7 and offers a fabulous living environment.



When you childhood dream of a HOME comes true!!

Complete with social infrastructure such as a school, hospital, hotel, offices, restaurants, retail village and homes for the senior living community, Ozone Urbana is undeniably Bangalore's largest integrated township. Planned to integrate the needs of the modern day home owner, the township encompasses amenities such as multiple clubhouses, over 9 acres of landscaped gardens, an internal road network of 9 kms, 2.4 kms long dedicated bicycle track, multiple sports facilities… it's all here!